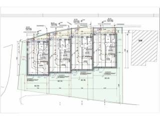
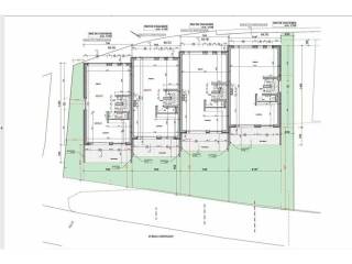
Nuove costruzioni Reisdorf: Hoesdorf
Vuoi essere avvisato appena saranno disponibili annunci con queste caratteristiche?


Immo Nord Kartheiser S.A.- Associato CIGDL
- Su Immotop.lu da 15 anni
8, route d'Ettelbruck 9160 - Erpeldange-sur-Sûre
IMMO NORD, dont les principes sont basés sur l’honnêteté et la transparence, a été créée en 2005 par Monsieur Guy KARTHEISER qui est bien connu dans le monde immobilier / bancaire / assurance (expérience de 25 ans). Nous sommes à l’écoute de vos besoins et recherchons la meilleure solution adaptée à votre profil. 10 collaborateurs toujours à vos services. 2 agences à Ingeldorf et Mersch Heures d’ouvertures fixes du lundi au samedi. Heures d’ouvertures flexibles selon arrangement avec le vendeur. publicité dans les médias écrits et internet + magazines groupe Kartheiser en 90.000 exemplaires. Notre champ d’activité s’étend du Nord au Centre et de l’Est à l’Ouest. IMMO NORD offre des services uniques dans le cadre de son produit phare ‚SOLUTIONS ALL IN ONE’. Agence immobilière : Ventes et achate, estimations, locations, assistance énergétiques Promotion immobilière : Développement des projets immobiliers, nouvelles constructions, transformations Solutions bancaires: Analyse de votre dossier de crédit par nos soins, négociations bancaires avec conditions avantageuses Produits fiscaux/Assurances (LaLux) : Payez moins d’impôts, assurances toutes branches Créateur d‘ambiance (Art&Feelings) : Water Edition, Plant & Art Edition, Acoustic Panels, Alpine Living Bien-être (LuxApart Ambiente) : Appart Hotel avec Wellness


Home Project- Su Immotop.lu da 15 anni
33, rue Abbé Henri Muller 9065 - Ettelbruck
La société Home Project S.A. fut créée en 2005 et reprise par Monsieur Patrick Collé en 2008, pouvant faire preuve de son savoir-faire depuis 1998 dans le domaine de l' immobilier. Home Project S.A. vise non seulement la simple vente et location de biens immobiliers, mais se distingue également par ses projets de rénovations et de maisons clés en main. Home Project S.A. est garant d'une qualité et d'une finition sans faille, et ceci grâce à ses sous-traitants luxembourgeois, minutieusement choisis en souci de satisfaire au mieux les attentes de ses clients. Nous sommes donc constamment à la recherche de terrains ou d'immeubles à démolir afin de réaliser nos projets de résidences, lotissements et maisons unifamiliales. Nous vous proposons également pour la reprise en vente ou en location de votre bien immobilier, et ceci après une estimation gratuite basée sur des conseils professionnels et compétents.
Immobilière Paul Reinig- Associato CIGDL
- Su Immotop.lu da 15 anni
14, Avenue de la Gare 9233 - Diekirch
ACHATS-VENTE-LOCATION-PROMOTIONS IMMOBILIERES-GESTION D'IMMEUBLES- ASSURANCES TOUTES BRANCHES Profitez de notre expérience depuis 1975! Une équipe multilingue de 15 personnes est à votre disposition.
Home Consult Immobilière- Su Immotop.lu da 12 anni
6, rte de Bastogne 9010 - Ettelbruck
Agence immobilière - toutes opérations immobilières - gérance et syndic de copropriétés.
Wiesenbach Immobilière- Su Immotop.lu da 5 anni
9, Esplanade 9227 - Diekirch
Vente - Location - Estimation - Conseil - Passeport Énergétique - Assurances
Agence Immobilière Chaves- Su Immotop.lu da 6 anni
29 rue de Bastogne 9010 - Ettelbruck
Agence Immobilière Vente / Location / Promotion / Assurances Foyer
Servizi associati
Mutuo
Assicurazione
Telecomunicazioni
Energia
Diventa proprietario
Scarica l'app
Valuta il tuo immobile
Articoli in primo piano













