New build Single-family detached houses in Frisange

€ 1,240,000
4
from 281 m²
3
1

Note

Listing updated on 04/14/2026
Description

reference: HJRK2

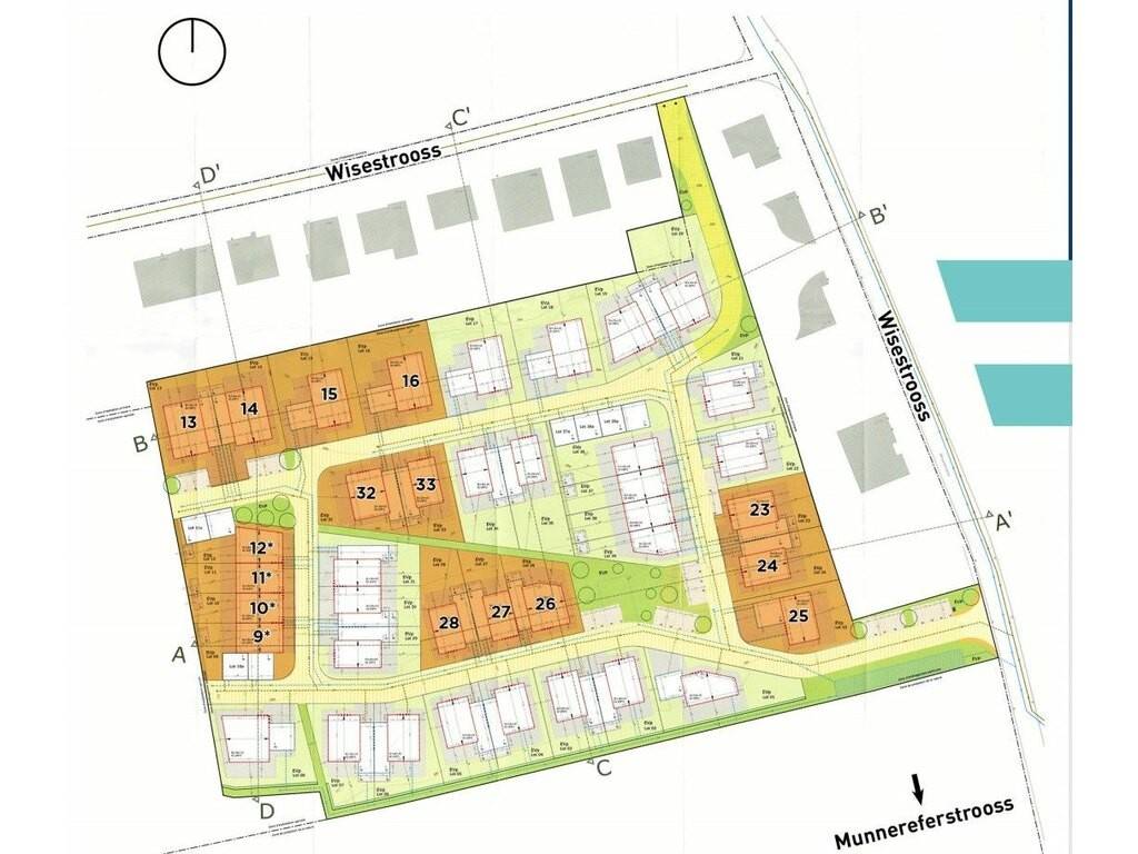
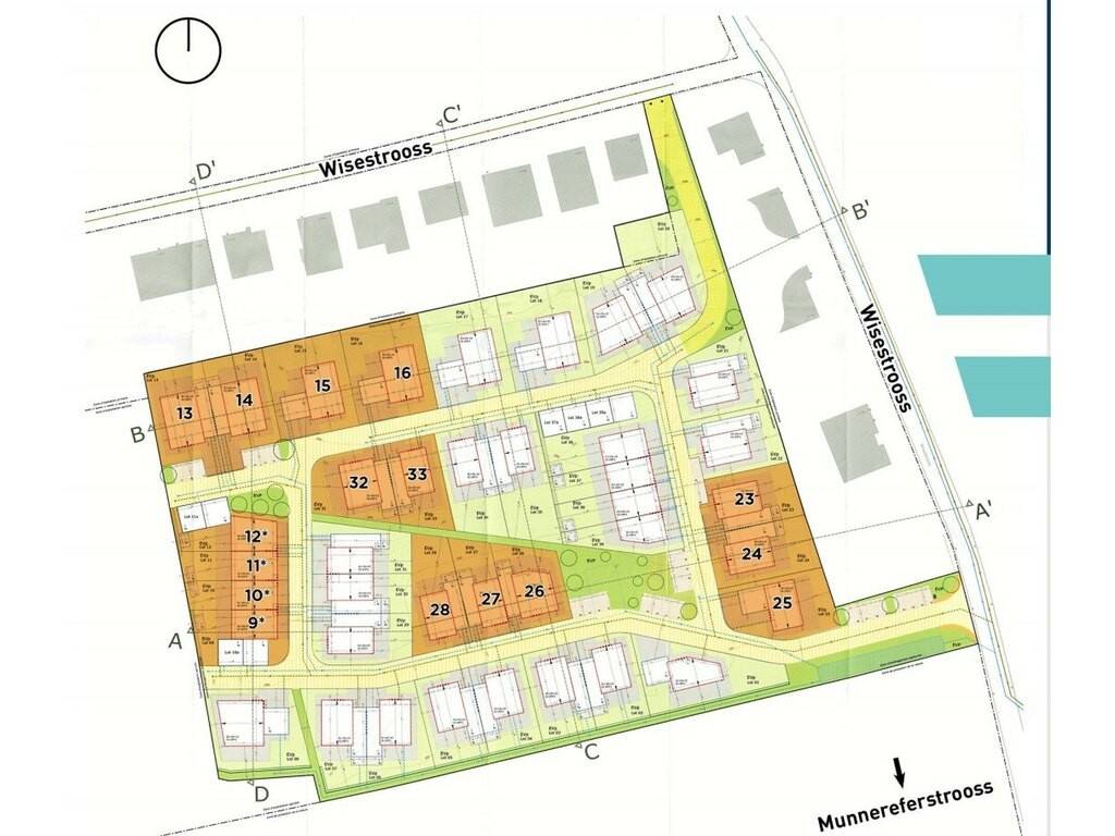
Dans un nouveau lotissement situé à Hellange, nouvelle construction de maisons unifamiliales jumelées par le garage d'une surface habitable de plus de 180 m2 à partir de 1.327.000 euros.
Le futur lotissement Iwwert der Sauerwiss se trouve au croisement entre Wisestrooss et la Route de Mondorf à Hellange et comptera de nombreuses maisons unifamiliales.

Plus d'informations en nous contactant au +352 26 29 68 08.

Réf. agence : HELLANGE 1404 LK
Sale Details
- Honoraires à la charge: Non communiqué

Reference agence: E3P:1034-74705
If you want to know more, you can talk to Laetitia KIMMEL.
Features
Type
Project
Contract
Sale
Unit
0 residential, 0 commercial
Floor
Ground floor
Rooms
4
Bedrooms
4
Bathrooms
3
Terrace
No
Energy efficiency

Thermal insulation

Not specified

Discover every corner of the property
+11
Mortgage
Additional options

Contact the advertiser

Associated services

spuerkeess Logo

Finance your project

with la Spuerkeess

spuerkeess
lalux Logo

Insure your property

with Lalux

lalux
orange Logo

Stay connected: Livebox Fiber

with Orange

orange
enovos Logo

Energy supplier

with Enovos

enovos
Immotop Financement Logo

Becoming a Homeowner

with Immotop.lu

Immotop Financement
Immotop Apps Logo

Download the app

with Immotop.lu

Immotop Apps
Immotop Estimation Logo

Evaluate your property

with Immotop.lu

Immotop Estimation