Single-family detached house 160 m², Reckange-sur-Mess Localité, Reckange-sur-Mess

€ 1,295,000
3
160 m²
2
No

Note

Listing updated on 04/13/2026
Description

This description has been translated automatically by Google Translate and may not be accurate

reference: HJ24Z

Espace Immo is proud to present this new project developed by the renowned Luxembourg company "Costantini"

This charming house with a surface area of 160 m2 living space, is composed as follows:

On the ground floor:
- a beautiful open space living room, dining room, kitchen with direct access to the terrace and garden of about 76m 2
- an office that can also serve as a guest bedroom
- a separate WC
- a storage

On the first floor:
- Two bedrooms of 15 and 14 m2
- a shower room with WC
- a beautiful master suite with dressing room and attached shower room of about 26 m2

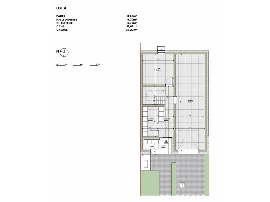
In the basement:
- a two-car garage
- a cellar
- a boiler room

Start of work in the last quarter of 2026

For any additional information, please contact us by email at info@espaceimmo.lu or by phone at +352 26 43 03 85
Sale Details
- Agency fees at the expense: Not communicated
- Thermal protection class: B

Reference agence: APM:15680-86914392
Features
Type
Single-family detached house
Contract
Sale
Floor
Ground floor
Lift
No
Surface
160 m²
Rooms
3
Bedrooms
3
Bathrooms
2
Terrace
No
Garage, car parking
1 in garage/box
Other features
  • Window frames in triple glass / metal
Price information
Price
€ 1,295,000
Price per m²
8,094 €/m²
Detail of costs
Applied VAT
Not specified
Estate agency fee
Not specified
Notary fees
Not specified
Fees to be paid by
Not specified
Energy efficiency

Energy consumption

A

Thermal insulation

B

Discover every corner of the property
+7
Mortgage
Insurance
Additional options

Contact the advertiser

Or

Associated services

spuerkeess Logo

Finance your project

with la Spuerkeess

spuerkeess
lalux Logo

Insure your property

with Lalux

lalux
orange Logo

Stay connected: Livebox Fiber

with Orange

orange
enovos Logo

Energy supplier

with Enovos

enovos
Immotop Financement Logo

Becoming a Homeowner

with Immotop.lu

Immotop Financement
Immotop Apps Logo

Download the app

with Immotop.lu

Immotop Apps
Immotop Estimation Logo

Evaluate your property

with Immotop.lu

Immotop Estimation