Building land for Sale

€ 280,000
706 m²

Note

Listing updated on 03/27/2026
Description

reference: GL05K

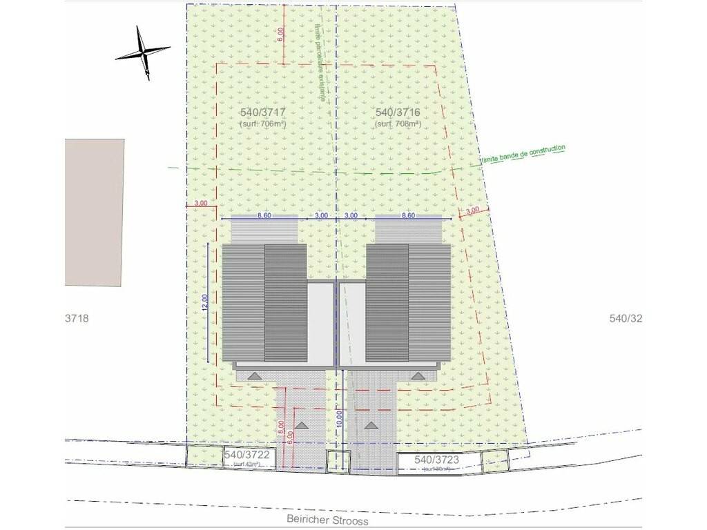
Nous vous proposons à la vente un superbe terrain à bâtir, libre de contrat de construction, d’une superficie de 7,06 ares, idéalement situé dans le paisible et pittoresque village de Hoffelt, au sein de la commune de Wincrange.

Ce terrain offre une excellente opportunité pour la réalisation d’un projet de maison jumelée par les garages, dans un cadre naturel verdoyant bénéficiant d’une vue dégagée. Un environnement calme qui conjugue harmonieusement sérénité et proximité des commodités essentielles.

Les plans d’aménagement ainsi que les prescriptions urbanistiques en vigueur sont disponibles sur simple demande, afin de vous accompagner au mieux dans la concrétisation de votre projet immobilier.

Sa situation géographique est particulièrement avantageuse : à environ 15 km d’établissements scolaires reconnus tels que le Lycée Edward Steichen et l’École européenne de Clervaux, ce bien offre un parfait équilibre entre qualité de vie et accessibilité.

Le prix de vente est fixé à 280.000 €.

Pour tout renseignement complémentaire ou pour organiser une visite, n’hésitez pas à nous contacter par e-mail à info@immoweiss.lu ou par téléphone au +352 99 83 61.
Sale Details
- Honoraires à la charge: Non communiqué

Reference agence: APM:1190-86687091
If you want to know more, you can talk to Yannick WEISS.
Features
Contract
Sale
Type
Building land
Surface
706 m²
Price information
Price
€ 280,000
Price per m²
397 €/m²
Discover every corner of the property
+2
Mortgage
Additional options

Contact the advertiser

Or

Associated services

spuerkeess Logo

Finance your project

with la Spuerkeess

spuerkeess
lalux Logo

Insure your property

with Lalux

lalux
orange Logo

Stay connected: Livebox Fiber

with Orange

orange
enovos Logo

Energy supplier

with Enovos

enovos
Immotop Financement Logo

Becoming a Homeowner

with Immotop.lu

Immotop Financement
Immotop Apps Logo

Download the app

with Immotop.lu

Immotop Apps
Immotop Estimation Logo

Evaluate your property

with Immotop.lu

Immotop Estimation