Mehrfamilienhaus in der Mittelsten Gewann, Erpeldange-sur-Sûre Localité, Erpeldange-sur-Sûre

€ 993.000
4
240 m²
2
Nein
Terrasse

Notiz

Anzeige aktualisiert am: 15.04.2026
Beschreibung

Referenz: GRGN2

Nouveau lotissement « In der Mittelsten Gewann » à Erpeldange-sur-Sûre.

LOT 4A.2: maison unifamiliale jumelée sur un terrain de 3,80 ares avec une surface habitable de +/- 146m2 et une surface totale de +/-240m2 comprenant:

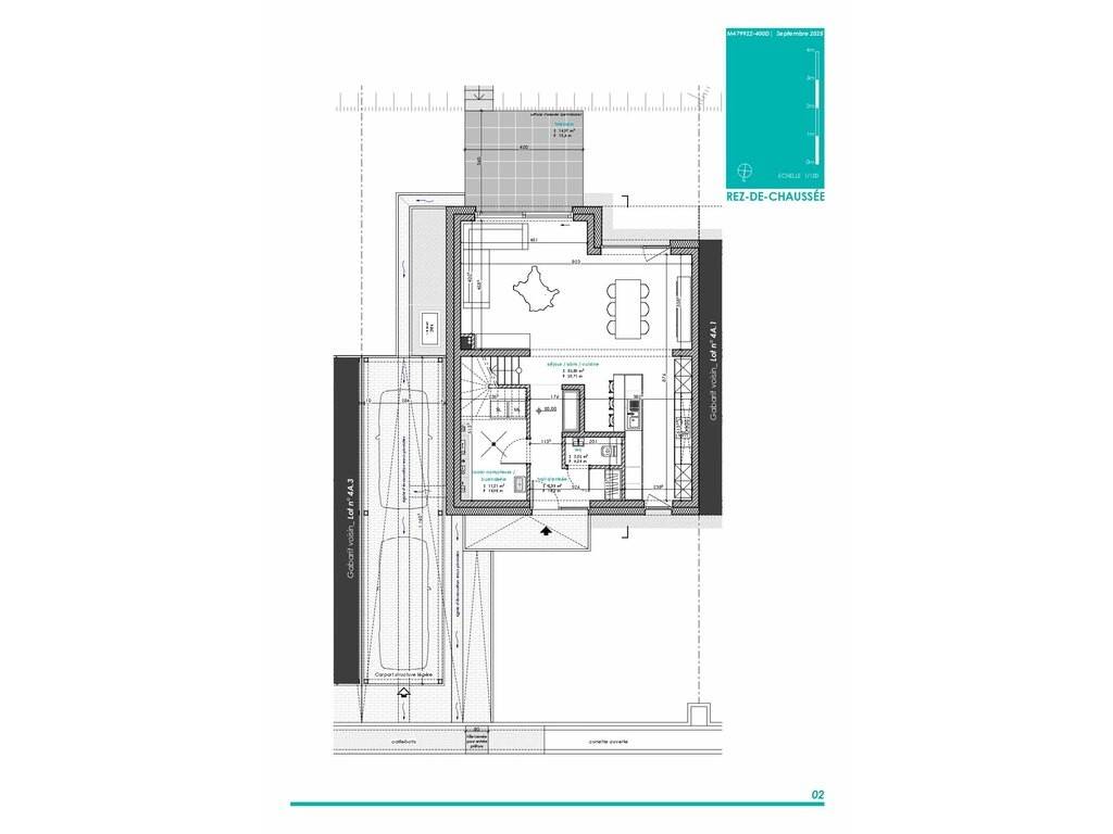
Au rez-de-chaussée :
- carport pour 2 voitures de +- 33 m2
- hall d'entrée
- séjour avec cuisine donnant sur la terrasse de 14,97 m2
- débarras
- WC séparé

Au 1er étage :
- hall de nuit
- 3 chambres à coucher
- salle de bains
- débarras
- buanderie

Au combles :
- hall de nuit
- chambre parentale avec dressing et salle de douche
- local technique

Prix LOT 4A.2: 1.043.000,- €
(TVA 17% - pour investissement)

---

Pour plus d'informations veuillez contacter:

Daniel VAZ
Conseiller en Immobilier

GSM: 621 757 809 / Tél: 45 71 31 35

Email: daniel.vaz@fischbach.lu
(lux, fr, de, eng, pt)

-----

Situation
Le lotissement « In der mittelsten Gewann » se situe à Erpeldange-­sur-Sûre entre la «Porte des Ardennes» et la «rue Laduno».

Environs
Erpeldange-sur-Sûre est un village calme situé à l’intersection de l’Oesling et du Gutland au nord-est du pays. La commune d’Erpeldange-sur-Sûre est composée de trois localités : Erpeldange/Sûre, Ingeldorf et Burden.

La commune appartient au canton de Diekirch et fait partie intégrante de l’ensemble urbain appelé « Nordstad » qui se compose ensemble avec les communes Bettendorf, Colmar-Berg, Diekirch, Ettelbruck et Schieren. Cette région est considérée comme le troisième pôle de développement du Grand-Duché, aux côtés des villes de Luxembourg et d’Esch-sur-Alzette.

Dans le centre d’Erpeldange-sur-Sûre, on trouve plusieurs petits magasins et restaurants. À Ingeldorf (9 minutes en voiture) sont plusieurs grands supermarchés, des magasins de vêtements, une pharmacie, des magasins d’électroménager et de meubles ainsi que divers ateliers de voitures. À Diekirch (6 minutes en voiture), vous trouverez une grande variété de restaurants et cafés ainsi qu’un cinéma. Le Centre Hospitalier du Nord à Ettelbruck est à seulement 8 minutes en voiture.

Erpeldange-sur-Sûre offre un certain nombre d’activités sportives. La ville dispose d’un centre sportif et culturel, d’un terrain de football et d’un court de tennis. À l’étang de pêche « Étang de Mechelsbach », vous pourrez passer une journée de détente à pêcher. On y trouve également un petit restaurant.

Le château d’Erpeldange-sur-Sûre a été construit au 12e siècle comme un château-fort d’eau. Le château a temporairement été utilisé en tant qu’une église, aujourd’hui il abrite l’administration municipale.

La région autour d’Erpeldange-sur-Sûre est un paradis pour les randonneurs. Au total, 34 circuits de randonnée et 16 pistes cyclables traversent la région et vous invitent à l’explorer.
L’accès direct à la route du Nord A7 permet de se rendre au Kirchberg en seulement 30 minutes. Les villes d’Ettelbruck et Diekirch ne sont qu’à 10 respectivement 6 minutes en voiture.

Mobilité
Le Nordstadbus a été créé pour développer la mobilité entre les communes de la « Nordstad ». De Colmar-Berg jusqu’à Moestroff en passant par Warken et Erpeldange-sur-Sûre, deux lignes de bus effectuent des trajets réguliers entre le sud et le nord de la « Nordstad ». La ligne 512 relie Moestroff à Warken via Bettendorf, Gilsdorf, Diekirch, Ingeldorf et Erpeldange-sur-Sûre.

Les arrêts de bus « Beim Schlass » et « An der Gewan » se trouvent à proximité immédiate et sont desservis par les lignes de bus 518, 543, 550 et 552 et avec une fréquence d’environ 60 minutes.

Ligne 518: Diekirch – Ettelbruck – Vichten – Redange
Ligne 543: Ettelbruck – Consthum
Ligne 550: Diekirch – Ettelbruck – Schlindermanderscheid – Schinker
Ligne 552: Diekirch – Ettelbruck – Consthum
La Ville d’Erpeldange-sur-Sûre participe à la mise en place d’un service eMovin proposant des pédelecs (vélos à assistance électrique) et des voitures en mode partage.

La gare la plus proche se trouve à Ettelbruck (environ 1,5 km de la résidence) et est desservie par la ligne 10 du réseau des Chemins de fer luxembourgeois (CFL), qui relie la ville de Luxembourg à Troisvierges.

Construction
En façade principale se trouve l’entrée pour piétons et l’accès au garage commun. La résidence comporte un sous-sol, un rez-de-chaussée et deux étages. Au sous-sol nous retrouvons les emplacements privatifs, les caves, les locaux communs et autres locaux techniques. Les étages et le rez-de-chaussée sont réservés à l‘habitation ou toute destination admise par les règlements administratifs afférents.

Conscience environnementale
Dans le contexte actuel du développement durable ainsi que de l’économie de l’énergie et de son fort renchérissement nous avons opté pour une construction des habitations sui­vant le standard énergétique « NZEB » (Nearly Zero Energy Building) – Règlement grand-ducal modifié du 30 novembre 2007 concernant la per­formance énergétique des bâtiments d’habitation.
La construction et la conception architecturale, la finition de qualité ainsi que l’isolation thermique et phonique, garantissent à tout investisseur une stabilité assurée du capital engagé et un rendement adéquat certain.

Écoles
Le « Schoulzentrum Ierpeldeng » dans la rue Michel Kremer est une école fondamentale pour les cycles 1-4. La Maison Relais « Sauerschlass Ierpeldeng » est située au premier étage et accueille les enfants de 3 à 12 ans.

Les villes Ettelbruck et Diekirch disposent de plusieurs écoles secondaires :

Lycée classique de Diekirch
Norstad Lycée
École d’Hôtellerie et de Tourisme de Luxembourg
Lycée Technique d’Ettelbruck
Lycée Technique Agricole
Lycée Technique pour Professions de Santé
Distances
Schoulzentrum Ierpeldeng: 700 m
Cactus Ingeldorf: 2,2km
Gare d’Ettelbruck: 4,4 km
Gare de Diekirch: 4,7 km
Étangs de Mechelsbaach: 2,5 km
Lycée Technique d’Ettelbruck: 2,5 km
Lycée Classique de Diekirch: 4,6 km
Ciné Scala Diekirch: 4,4 km
Centre Hospitalier du Nord: 2,9 km
Luxembourg-Ville: 37 km
Aéroport: 35,9 km

--

L'excellent emplacement tout comme la construction et la conception architecturale, la finition de qualité ainsi que l'isolation thermique, garantissent à tout investisseur une stabilité assurée du capital engagé et un rendement adéquat certain et un confort de vie haut de gamme pour l’acquéreur voulant habiter ce bien.

FISCHBACH Realtors & Developers vous propose des objets sélectionnés, pour répondre à la demande de notre clientèle.

N‘hésitez pas à consulter notre site WWW.FISCHBACH.LU pour découvrir de photos supplémentaires et nos autres biens.
Sale Details
- Honoraires à la charge: Non communiqué
- Isolation thermique: A
- Surface du terrain: 3.8 ares
Reference agence: APM:18244-86743236
Wenn Sie mehr wissen möchten, können Sie mit Daniel Vaz. sprechen
Merkmale
Art
Mehrfamilienhaus
Vertrag
Verkauf
Etage
3
Stockwerke im Gebäude
3
Aufzug
Nein
Fläche
240 m²
Zimmer
4
Schlafzimmer
4
Badezimmer
2
Terrasse
Ja
Garage, parkplätze (auto)
2 parkplatz(e)
Heizung
Unabhängige heizung, wärmepumpe betrieben
Andere Merkmale
  • Fensterrahmen mit Dreifachverglasung / Metall
  • Satellitenfernsehen
  • Türöffner mit Videoüberwachung
Preisinformationen
Preis
€ 993.000
Preis pro m²
4.051 €/m²
Kostendetails
Verrechnete Mehrwertsteuer
Nicht angegeben
Betrag der Agenturprovision
Nicht angegeben
Notarkosten
Nicht angegeben
Agenturgebühren auf Kosten von den
Nicht angegeben
Energieeffizienz

Energieverbrauch

A

Wärmeschutzklasse

A

Entdecken Sie jeden Winkel des Anwesens
+14
Hypothek
Versicherung
Zusätzliche Optionen

Inserenten kontaktieren

Oder

Weitere Dienstleistungen

spuerkeess Logo

Finanzierung Ihres Projekts

mit la Spuerkeess

spuerkeess
lalux Logo

Versichern Sie Ihr Eigentum

mit Lalux

lalux
orange Logo

Verbunden mit Livebox-Glasfaser

mit Orange

orange
enovos Logo

Energieversorger

mit Enovos

enovos
Immotop Financement Logo

Eigentümer werden

mit Immotop.lu

Immotop Financement
Immotop Apps Logo

App herunterladen

mit Immotop.lu

Immotop Apps
Immotop Estimation Logo

Schätzen Sie Ihre Immobilie

mit Immotop.lu

Immotop Estimation