3 résultats
maisons et appartements avec garage à vendre Beauraing : Winenne
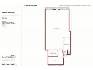
- 1/18nouveau
Voulez-vous être informé lorsque des annonces seront disponibles avec ces caractéristiques ?
Trouvez la propriété qui vous convient, bénéficiez de l'aide des agences immobilières dans le secteur

CondrogestRue De Bouillon 59 5570 - Beauraing
PREFIMMA - IMMORue de Dinant 85 5570 - Beauraing
Maisons BaijotRue de Malvoisin 38 5575 - Gedinne
Les Viviers PropertiesChaussée de Marche 398 5000 - Namur
Les Viviers PropertiesRue de Behogne 29 5580 - Rochefort
CENTURY 21 Immo DemeuseRue du Commerce 1 5590 - Ciney
Immo Les Eaux Vives sprlFaubourg Saint Germain 28 5660 - Couvin
ValonisRue de Malvoisin 38 5575 - Gedinne
Honesty RochefortRoute de Marche 25 5580 - Rochefort
Services associés
Prêt
Assurance
Téléphonie & Fibre
Énergie
Devenir propriétaire
Télécharger l'app
Estimez votre bien
Les dossiers à la une




















