Μονοκατοικία 188 τμ, νέα, Bascharage, Käerjeng

€ 1.198.000
4
188 m²
3
Όχι

Σημείωση

Τελευταία ενημέρωση: 14/04/2026
Περιγραφή

κωδικός: HJR2W

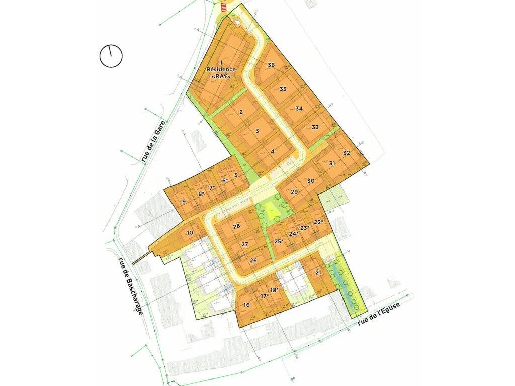
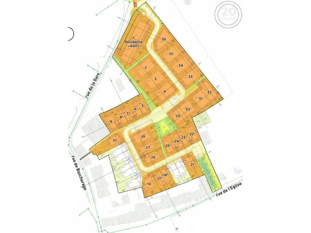
Maison unifamiliale jumelée d'une surface habitable de 131 m2 et totale de 188m2 sur un terrain de 5.46 ares orientée Sud-Ouest

La maison se compose comme suit:
- Au rez-de-chaussée: hall d'entrée, cuisine ouverte sur séjour/salle à manger avec accès à la terrasse et au jardin, débarras, WC séparé, local technique/buanderie, garage pour deux voitures
- Au 1ère étage : hall de nuit, 4 chambres à coucher dont une suite parentale avec salle de douche privative, une salle de bain,

Les plans peuvent être modifiés selon vos souhaits.

Classe énergétique : ABA+

PRIX : 1.198.000 TTC 3% (sous réserve de la décision de l'AED)

Plus d'informations au +352 26 29 68 08.

Réf. 16 HAUTCHARAGE 1404B RK
Sale Details
- Honoraires à la charge: Non communiqué

Reference agence: E3P:1034-74700
Εάν θέλετε να μάθετε περισσότερα, μπορείτε να μιλήσετε με Raphaël KIEFFER.
Χαρακτηριστικά
Τύπος
Μονοκατοικία
Συμβόλαιο
Πώληση
Όροφος
Ισόγειο
Ανελκυστήρας
Όχι
Εμβαδόν
188 m²
Δωμάτια
4
Υπνοδωμάτια
4
Μπάνια
3
Γκαράζ, χώροι στάθμευσης
2 σε πάρκινγκ/κλειστό πάρκινγκ, 2 εξωτερικό
Άλλα χαρακτηριστικά
  • Τριπλός υαλοπίνακας/ Κουφώματα αλουμινίου
Ενεργειακή απόδοση

Θερμική μόνωση

Δεν εμφανίζεται

Ανακαλύψτε κάθε γωνιά του ακινήτου
+7
Δάνειο
Ασφάλιση
Πρόσθετες επιλογές

Επικοινώνησε με τον αγγελιοδότη

Υπηρεσίες

spuerkeess Σήμα

Xρηματοδότησε τα σχέδιά σου

με τη Spuerkeess

spuerkeess
lalux Σήμα

Ασφάλισε το ακίνητό σου

με τη Lalux

lalux
orange Σήμα

Μείνε online όσο θες: Livebox Fiber

από την Orange

orange
enovos Σήμα

Βρες ενεργειακές λύσεις

με την Enovos

enovos
Immotop Financement Σήμα

Αγόρασε σπίτι

με την Immotop.lu

Immotop Financement
Immotop Apps Σήμα

Κατέβασε την εφαρμογή

με την Immotop.lu

Immotop Apps
Immotop Estimation Σήμα

Μάθε την αξία του ακινήτου σου

με την Immotop.lu

Immotop Estimation