Villa indépendante 2, Route de Durbuy, Barvaux-sur-Ourthe, Durbuy

€ 950 000
5+
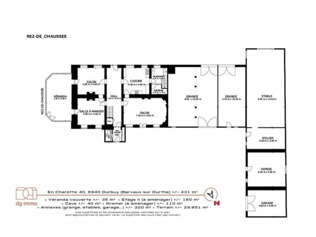
431 m²
2
Non
Terrasse

Remarque

Annonce mise à jour le 14/04/2026
Description

référence: HIJRZ

À proximité immédiate de Durbuy, dans un environnement calme et verdoyant, découvrez ce domaine de caractère implanté sur ± 3 hectares.

Ancienne ferme des XVIIIe et XIXe siècles, la propriété offre jusqu’à ± 950 m² de surface bâtie aménagée ou à aménager, représentant un potentiel de développement exceptionnel.

Vous cherchez un lieu pour :

un restaurant avec chambres
un hôtel de charme ou gîte haut de gamme
un espace bien-être ou retraite
un lieu de réception (mariages, séminaires…)
un projet immobilier (résidence-services, appartements, projet mixte…)
ou simplement une propriété d’exception

Ce bien s’y prête parfaitement.

Le bâtiment principal comprend de vastes espaces de vie, plusieurs chambres et de nombreuses possibilités d’aménagement. Des dépendances ainsi qu’un pavillon indépendant viennent compléter l’ensemble.

Le parc de ± 3 hectares offre un cadre rare, alliant calme, intimité et proximité immédiate d’un pôle touristique majeur.

Possibilité d’acquérir 3 hectares supplémentaires attenants, dont environ 8.000 m² en zone à bâtir.

Bien rare avec fort potentiel, idéal pour projet de vie ou investissement touristique, professionnel ou immobilier (sous réserve d’autorisations).

Contactez nous sans attendre pour de plus amples informations et pour découvrir ce bien unique.

Visite Virtuelle :
https://my.matterport.com/show/?m=HPAsu7WC6Yv&play=1&ts=1&brand=1&nozoom=1&lang=fr

Descriptif donné à titre informatif et non contractuel.
Sale Details
- Honoraires à la charge: Non communiqué

Reference agence: IW:29906-21488461
Caractéristiques
Typologie
Villa indépendante
Transaction
Vente
Étage
Rez-de-chaussée
Ascenseur
Non
Superficie
431 m²
Chambres/pièces
5+
Chambres
6
Bains/douches
2
Terrasse
Oui
Autres caractéristiques
  • Cadres extérieurs double vitrage / métal
Informations sur les prix
Prix
€ 950 000
Prix au m²
2 130 €/m²
Efficacité énergétique
  • Certification énergétique

    En attente de certification
Découvrez chaque recoin de la propriété
+27
Prêt
Assurance
Options additionnelles

Contacter l'annonceur

Ou

Services associés

spuerkeess Logo

Financer votre projet

avec la Spuerkeess

spuerkeess
lalux Logo

Assurer votre bien immobilier

avec Lalux

lalux
orange Logo

Restez connecté : Livebox Fibre

avec Orange

orange
enovos Logo

Fournisseur d’énergies

avec Enovos

enovos
Immotop Financement Logo

Devenir propriétaire

avec Immotop.lu

Immotop Financement
Immotop Apps Logo

Télécharger l'app

avec Immotop.lu

Immotop Apps
Immotop Estimation Logo

Estimer votre bien immobilier

avec Immotop.lu

Immotop Estimation